Cabina dus usa glisanta 100 x 100 Polysan Easy patrata
Detalii si caracteristici
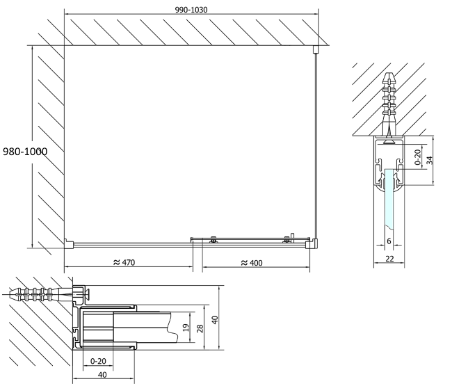
- Dimensiuni (mm): L=990-1030; l=980-1000; deschidere=400; h=1900
- Panouri sticla securizata clara, grosime 6 mm
- Profile aluminiu lustruite
- Sistem glisare cu role duble si cuplare/decuplare usoara
Nu sunt incluse cadita, setul de dus sau alte obiecte cu rol de prezentare. Acestea pot fi achizitionate separat.
Descriere
Cabina de dus premium fabricata in Europa din cele mai bune componente, capabile sa imbine esteticul si functionalitatea intr-o baie contemporana. Este alcatuita din elemente de sustinere si ghidaj, panouri din sticla securizata transparenta, sistem de glisare cu role duble pe rulmenti, toate acestea pentru obtinerea unui produs trainic, cu aspect robust si eficient.
Schite

Produse asociate













